Tramsingel 95A6

Tramsingel 95A6

BREDA

verkocht

Ook uw woning of bedrijfspand succesvol verkopen? Neem dan contactmet ons op

Gratis waardebepaling

Omschrijving

Wonen met uitzicht op de Singel – verrassend ruim en centraal gelegen!
Op een toplocatie aan de Tramsingel, op loopafstand van het bruisende stadscentrum van Breda, bieden wij u deze fraaie en verrassend ruime 3-kamer maisonnette aan. Met een royale living op de eerste verdieping, twee comfortabele slaapkamers en een zonnige stadstuin op het westen is dit appartement ideaal voor wie stijlvol en centraal wil wonen – mét uitzicht op het water!

Woonoppervlakte: ca. 70 m² | Bouwjaar: 1995 | Oplevering: in overleg, op korte termijn mogelijk

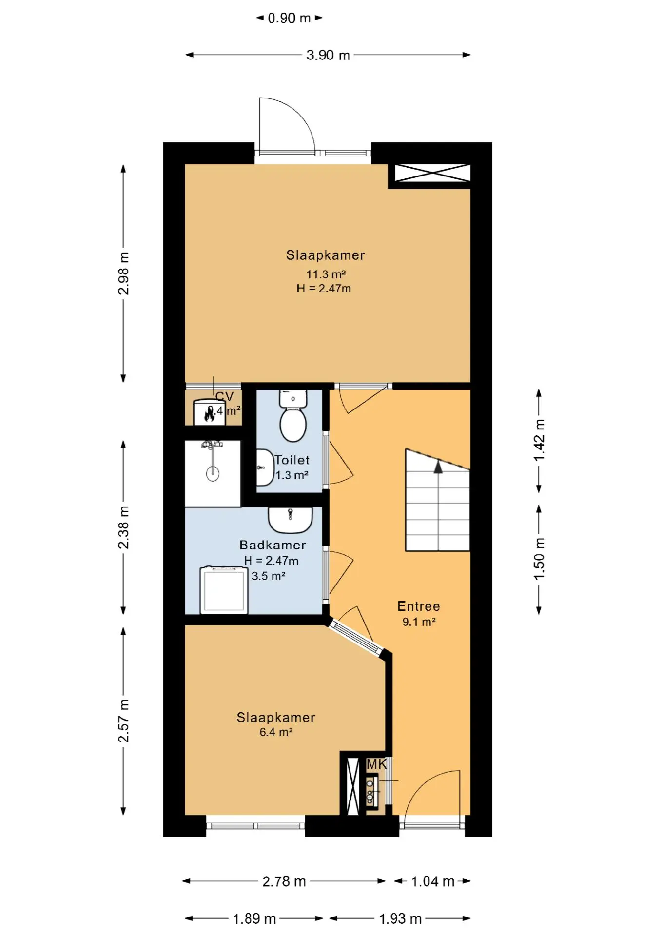
Indeling
Begane grond:
Via de privé-entree betreedt u de hal met meterkast, garderobe en trapopgang naar de leefruimte. Op deze verdieping vindt u twee slaapkamers – een aan de voorzijde met laminaatvloer en wanden afgewerkt met spachtelputz en een tweede aan de achterzijde met vaste kast (voorzien van CV-ketel en mechanische ventilatie-unit) Verder is er een nette badkamer met douche, wastafel en wasmachineaansluiting, plus een apart toilet met fonteintje. Vanuit de achterste slaapkamer heeft u direct toegang tot de zonnige tuin en de vrijstaande houten berging met elektra – ideaal voor het stallen van fietsen of extra opslagruimte.

Eerste verdieping:
Hier vindt u de verrassend ruime living met open keuken en eetgedeelte. De zitkamer aan de voorzijde biedt een prachtig uitzicht over de Singel – een fijne plek om tot rust te komen. De open keuken is eenvoudig maar functioneel en voorzien van losse apparatuur. Aan de achterzijde ligt het zonnige stadstuintje op het westen, ideaal om 's avonds te genieten van de laatste zonnestralen.

Pluspunten;
*Fraai uitzicht op de Singel
* Energielabel A
*Zonnige stadstuin op het westen
*Volledig geïsoleerd (vloer, spouw, dak)
*Voorzien van dubbele beglazing
*HR combiketel (AWB, 2010)
*Mechanische ventilatie voor keuken, badkamer en toilet
*SUS-geluidsisolerende kasten
*Actieve en financieel gezonde VvE
*Servicekosten ca. € 103,- per maand
*Gratis parkeren op de openbare weg

Omgeving en bereikbaarheid:
De ligging is ideaal - u woont hier in het centrum van Breda met alle voorzieningen binnen handbereik. Winkels, horeca, het treinstation en meerdere busverbindingen zijn op loopafstand. Daarnaast rijdt u in een mum van tijd de A16 of A27 op richting Rotterdam, Antwerpen of Utrecht.

Kortom:
Bent u op zoek naar een goed onderhouden, instapklare maisonnette met veel leefruimte, privacy én een prachtig uitzicht? Dan is Tramsingel 95 A6 absoluut een bezichtiging waard!

Biedingen:

De vraagprijs is een uitnodiging tot het komen van een bieding. Een overeenkomst komt tot stand op basis van prijs, oplevering en ontbindende voorwaarden. Indien er meerdere kandidaten zich tegelijk aanmelden zal eenieder een gelijke kans krijgen om de woning te bezichtigen. Bij grote belangstelling kan de verkoper besluiten om via inschrijving/ biedingsprocedure de verkoop voort te zetten. Biedingen worden uitsluitend via Move.nl aangenomen. Hierdoor heeft verkoper volledig inzicht in alle biedingen. Ideale Makelaar zorgt voor een transparant proces. Nadat de koop is gesloten en de 3 dagen bedenktijd zijn verlopen kunnen de andere kandidaat-kopers inzage krijgen in het biedingsproces.

Koopovereenkomst:  

Uitgangspunt voor de koop is de koopakte vastgesteld door de NVM (Nederlandse Vereniging van Makelaars), de consumentenbond, het notariaat en Vereniging eigen Huis. In de overeenkomst wordt standaard opgenomen een bankgarantie of waarborgsom ter grootte van 10% van de koopsom. Tenslotte willen wij u informeren, dat op onze dienstverlening de voorwaarden van de NVM van toepassing zijn. Alle aanbiedingen in deze brochure zijn bedoeld als uitnodiging om in onderhandeling te treden. Deze verkoopbeschrijving is met zorg samengesteld. Alle tekst is echter informatief. Aan eventuele onjuistheden kunnen derhalve geen rechten worden ontleend.
De Meetinstructie is gebaseerd op de NEN2580. De Meetinstructie is bedoeld om een meer eenduidige manier van meten toe te passen voor het geven van een indicatie van de gebruiksoppervlakte. De Meetinstructie sluit verschillen in meetuitkomsten niet volledig uit, door bijvoorbeeld interpretatieverschillen, afrondingen of beperkingen bij het uitvoeren van de meting.
Lees meer

Kenmerken

Overdracht

Status
verkocht
Aanvaarding
in overleg

VvE checklist

Inschrijving KVK
Ja
Jaarlijkse vergadering
Ja
Periodieke bijdrage
Ja (103,00 per maand)
Reservefonds aanwezig
Ja
Onderhoudsplan
Ja
Opstalverzekering
Ja

Bouw

Soort woning
appartement
Soort appartement
maisonnette
Aantal woonlagen
2
Bouwvorm
bestaande bouw
Bouwjaar
1995
Open portiek
nee
Huidige bestemming
woonruimte
Onderhoud binnen
goed
Onderhoud buiten
goed
Voorzieningen
mechanische ventilatie, tv kabel, glasvezel kabel, natuurlijke ventilatie
Isolatie
dakisolatie, muurisolatie, vloerisolatie

Energie

Energielabel
A
Verwarming
cv ketel
Warm water
cv ketel
C.V.-ketel
gas gestookte combi-ketel uit 2010 van AWB, eigendom

Oppervlakten en inhoud

Woonoppervlakte
70 m²
Bergruimte oppervlakte
5 m²

Indeling

Aantal kamers
3
Aantal slaapkamers
2

Buitenruimte

Ligging
aan water, aan drukke weg, in centrum, vrij uitzicht
Tuin
achtertuin met een oppervlakte van 10 m² en is gelegen op het westen

Bergruimte

Garage
geen garage
Parkeergelegenheid
openbaar parkeren
Schuur/berging
vrijstaand hout

Foto's

Locatie

Meer informatie?